Vermieter Verifiziert
Feinstes Apartment im Herzen von München
Prinzregentenstraße, 81677, München
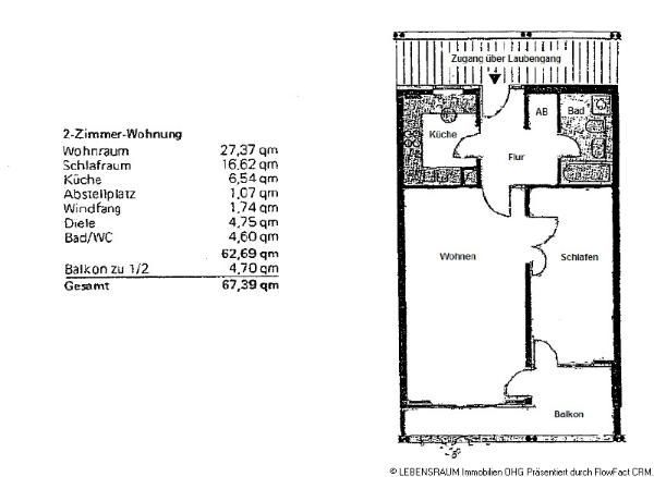
68 m2, Stock: 12 Zimmer1 Bett2 Personen
Über dieses Angebot
Gesamte Wohnung
Willkommen in einer Wohnung, die Ruhe, Stil und Münchner Lebensqualität perfekt verbindet. Diese exklusive 68-qm-Wohnung in Bogenhausen überzeugt durch ein durchdachtes Raumkonzept, hochwertige Möblierung und eine Lage, die zu den begehrtesten Münchens zählt. Große Fenster sorgen für viel Tageslicht und eine angenehme, elegante Atmosphäre. Der Wohnbereich ist modern und gleichzeitig wohnlich eingerichtet – ideal zum Ankommen, Arbeiten und Entspannen. Das Schlafzimmer bietet Ruhe und Komfort au...
Mehr lesenDienste
WohnungsgeberbestätigungÄnderung der Briefkasten- und Türklingelbeschriftung möglich
Rundfunkbeitrag
Nicht in der Miete enthalten
Reinigung
Nicht verfügbar
Parkmöglichkeit
Nicht verfügbar
Pförtner
Nicht verfügbar
Fitness
Nicht verfügbar
Einrichtung
Allgemein
- WaschmaschineIn der Wohnung
- TV
- Schreibtisch oder Arbeitsfläche
- WiFi
- Balkon
- Terrasse
- Türsprechanlage
- Aufzug
Küche
- Geschirrspülmaschine
- Wasserkocher
- Herd
- Kühlschrank
- Ofen
- Mikrowelle
- Besteck
- Gefrierschrank
Schlafzimmer
- Bettwäsche
- Kissen
- Decken
- Nachttischlampe
- Schrank oder Kommode
Bad
- Badewanne
- Föhn
- Handtücher
Anderes
- Bügeleisen
- Bügelbrett
- Staubsauger
- Besen
- Bodenwischer
Betten
1 Doppelbett
Schlafzimmer
Verfügbarkeit
Mindestaufenthalt
6 Monate
Verfügbar ab
29.01.2026
- Jan. 2026
- Feb. 2026
- März 2026
- Apr. 2026
- Mai 2026
- Juni 2026
- Juli 2026
- Aug. 2026
- Sept. 2026
- Okt. 2026
- Nov. 2026
- Dez. 2026
2026
Hausordnung
Haustiere sind nicht erlaubt
Rauchen ist nicht erlaubt
Kostenübersicht
Monatsmiete
2.500 €
Mietkaution
5.000 €
Endreinigungsgebühr
300 €
249 € inkl. MwSt.
Zertifizierungen und Vorschriften
Energieausweis
Dieses Gebäude unterliegt nicht den Anforderungen der EnEV
